Bulong neo Tín Quang trở thành cái tên quen thuộc trong ngành xây dựng và thi công công trình tại Việt Nam. Sản phẩm này không chỉ nổi bật về chất lượng mà còn thể hiện sự đa dạng trong mẫu mã, phù hợp với mọi yêu cầu kỹ thuật của từng dự án. Với uy tín đã được khẳng định qua nhiều năm, Tín Quang đã trở thành đối tác tin cậy của các nhà thầu, doanh nghiệp xây dựng, góp phần đẩy mạnh tiến độ và nâng cao tiêu chuẩn an toàn của các công trình.
Bu Lông Neo là gì?
Bulong neo, hay còn gọi là bu lông móng, là một sản phẩm quan trọng trong việc cố định các kết cấu, đặc biệt là kết cấu thép vào bê tông.
Loại bulong này thường xuất hiện trong quá trình thi công điện, tại các trạm biến áp, trong các nhà xưởng, nhà máy, và trong kết cấu thép. Nó cũng được sử dụng để gắn chặt các tấm vào móng bê tông khi kết hợp với yếu tố kết cấu thép.
Cấu tạo của bu lông neo móng
- Phần thân bu lông: Là đoạn thép tròn được chế tạo với hình dáng uốn cong hoặc thẳng, thường được làm từ thép carbon hoặc inox có độ bền cao.
- Đầu ren: Phần này được tiện thành ren để có thể kết nối với đai ốc, đảm bảo sự cố định chắc chắn.
- Đai ốc và vòng đệm: Đây là các phụ kiện kèm theo, có tác dụng tăng cường độ chắc chắn và ổn định trong mối liên kết.
- Đầu móng neo: Đây là phần cuối của bu lông, có thể được tạo hình ở dạng chữ L, chữ J hoặc thẳng, tùy thuộc vào yêu cầu thiết kế.
Thông số kỹ thuật của Bu lông Neo (Bu lông móng)
– Kích thước:
- Đường kính thường dao động từ M14 đến M48
- Chiều dài: Từ 200 đến 3000 mm
- Chiều dài ren: theo yêu cầu cụ thể
– Nguyên liệu chế tạo: Thép Cacbon, thép hợp kim, thép không gỉ
– Bề mặt xử lý: Mộc, mạ điện phân, mạ kẽm nhúng nóng
– Cấp bền: 3.6, 4.8, 5.6, 6.6, 6.8, 8.8, 10.9
– Tiêu chuẩn áp dụng: JIS, GB, DIN, TCVN
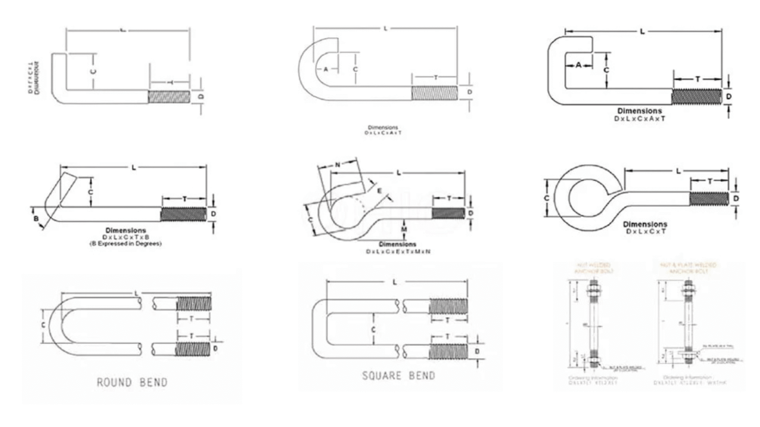
Các loại Bulong Neo Móng
Bulong neo dạng chữ J
Bulong neo chữ J là loại bulong có đầu cong hình chữ J, thường dùng để neo giữ các hệ thống ống nước, cột đèn, chân cột móng hoặc các kết cấu cần kết nối dễ dàng, linh hoạt. Đặc điểm nổi bật của loại bulong này chính là khả năng cài đặt nhanh, dễ tháo lắp, phù hợp với các dự án cần sự linh hoạt cao.
Ngoài ra, bulong chữ J còn được chế tạo bằng thép chịu lực cao, dễ dàng mạ chống ăn mòn, giúp tuổi thọ của sản phẩm dài lâu trong điều kiện môi trường khắc nghiệt. Hiện tại, Tín Quang cung cấp các mẫu bulong neo chữ J đa dạng về kích thước, giúp Nhà thầu lựa chọn phù hợp với từng lĩnh vực từ xây dựng dân dụng đến công nghiệp.
Bulong neo dạng chữ I
Với thiết kế thẳng, dạng chữ I, bulong neo này đặc biệt phù hợp cho các công trình cao tầng, cầu cống và các dự án xây dựng đòi hỏi độ chính xác cao về tải trọng và giữ vững kết cấu. Sản phẩm có khả năng chịu lực tốt, ít biến dạng sau thời gian dài sử dụng, phù hợp cho các hệ kết cấu phức tạp, yêu cầu độ ổn định cao.
Chất liệu thép cường độ cao, tiêu chuẩn chính xác, kết hợp công nghệ mạ điện tử giúp bulong neo chữ I giữ vững tính năng kỹ thuật qua thời gian, kể cả trong điều kiện khí hậu khắc nghiệt như miền Bắc hoặc miền Trung. Đặc biệt, Tín Quang cung cấp các dòng bulong tùy chỉnh theo yêu cầu riêng, giúp khách hàng tối ưu hóa công năng của từng dự án.
Bulong neo dạng chữ L
Bulong neo chữ L nổi bật bởi thiết kế hình dạng chữ L, giúp phân phối lực đều và phù hợp cho các kết cấu chịu tải trọng lớn như móng trụ đèn, móng cột nhà xưởng, hay các hệ thống kết cấu thép lớn. Đặc điểm chính là khả năng chịu lực tốt, khả năng neo giữ chắc chắn trong các ứng dụng xây dựng công nghiệp nặng, trạm biến áp, phần móng cột, trụ đỡ.
Chất lượng thép cao cấp, mạ chống ăn mòn, cùng khả năng tùy chỉnh theo từng dự án giúp bulong chữ L trở thành lựa chọn phổ biến trong các công trình yêu cầu độ bền cao và khả năng chịu rung động tốt. Địa lý và điều kiện thi công đa dạng, Tín Quang cung cấp các giải pháp tối ưu cho khách hàng, phù hợp từ các dự án xây dựng công nghiệp lớn đến các công trình dân dụng cao tầng.
Bulong neo dạng LA
Cấu trúc chi tiết của bu lông neo kiểu LA
- Phần đầu: Bu lông neo kiểu LA có đầu được tiện ren chắc chắn, tương tự như các loại bu lông neo khác. Quá trình tiện ren tuân thủ các tiêu chuẩn ISO, ASTM, JIS, đảm bảo độ chính xác cao, dễ dàng kết nối với đai ốc và vòng đệm.
- Phần thân: Thân bu lông neo dạng LA có thiết kế dài và không tiện ren, giúp tăng cường khả năng chịu lực nén và kéo từ kết cấu thép. Thân bu lông thường được làm từ thép hợp kim có độ bền cao hoặc thép cacbon được xử lý bề mặt, nhằm cải thiện khả năng chống ăn mòn và gia tăng tuổi thọ khi sử dụng.
- Phần đuôi: Đây là chi tiết tạo nên sự khác biệt lớn nhất cho bu lông neo kiểu LA. Trong khi bu lông chữ L chỉ có phần đuôi cong tạo góc vuông, bu lông LA có phần móc cong đặc trưng hình chữ A. Cấu trúc này giúp tăng diện tích tiếp xúc trong khối bê tông, tạo nên liên kết vững chắc hơn
Bulong neo dạng U và V
Bulong neo dạng U và V thường được sử dụng trong các hệ thống cố định cột đèn, chân cẩu trục, giàn giáo hoặc các cấu kiện cần mô phỏng chuyển động hạn chế. Các loại bulong này giúp phân chia lực đều, tối ưu khả năng chịu uốn, lực kéo và lực nén, phù hợp cho các hệ kết cấu có ứng suất cao hoặc cần dịch chuyển hạn chế.
Lợi ích của bulong U và V chính là khả năng thích ứng cao với các điều kiện khắc nghiệt, dễ lắp đặt nhanh, đồng thời giảm thiểu các yếu tố về rung lắc hay lệch vị trí. Tín Quang cũng cung cấp các loại bulong này theo tiêu chuẩn, gia công theo thiết kế riêng để phù hợp mọi công trình đều đạt tiêu chuẩn an toàn cao nhất.
Các loại bulong neo khác theo yêu cầu đặc thù của khách hàng
Ngoài các dòng phổ biến, Tín Quang luôn sẵn sàng gia công các loại bulong neo theo đặc thù, đáp ứng các yêu cầu riêng biệt của khách hàng trong các dự án đặc thù như nhà máy nhiệt điện, hầm muối, mỏ khai thác hoặc các công trình lớn yêu cầu tính kỹ thuật cao. Các thiết kế riêng biệt này thường dựa trên bản vẽ kỹ thuật, tương thích theo công nghệ thi công của từng dự án.
Điều đặc biệt là khả năng linh hoạt trong chế tạo và gia công theo yêu cầu giúp khách hàng tối ưu về mặt kỹ thuật, tiết kiệm thời gian, tăng khả năng tháo lắp sửa chữa nhanh chóng. Với đội ngũ kỹ thuật giàu kinh nghiệm, Tín Quang luôn đảm bảo mỗi chiếc bulong đều có độ chính xác cao, phù hợp từng mục đích sử dụng cụ thể.
Mua bulong neo Tín Quang chính hãng, giá cạnh tranh tại Việt Nam
Cam kết sản phẩm đạt tiêu chuẩn, chất lượng cao, độ chính xác cao
Khi chọn mua bulong neo Tín Quang, khách hàng hoàn toàn yên tâm về chất lượng và độ chính xác của sản phẩm. Công ty luôn áp dụng quy trình kiểm tra chất lượng khắt khe, gia công theo tiêu chuẩn quốc tế, đảm bảo mỗi chiếc bulong đều đạt các tiêu chuẩn về lực kéo, độ bền, khả năng chống ăn mòn và đáp ứng mọi quy chuẩnconstruct phù hợp với từng loại công trình.
Chúng tôi cam kết cung cấp sản phẩm đúng chủng loại, đúng kích thước, đúng tiêu chuẩn kỹ thuật và phù hợp mọi yêu cầu của khách hàng. Bảng mã sản phẩm rõ ràng, chứng nhận chất lượng rõ ràng giúp khách hàng dễ dàng kiểm chứng, yên tâm khi thi công xây dựng.
Quy trình sản xuất khép kín, kiểm soát chặt chẽ trong từng bước
Tín Quang đầu tư hệ thống máy móc hiện đại, dây chuyền sản xuất khép kín từ nguyên liệu đầu vào, gia công, mạ bảo vệ, kiểm tra chất lượng đến thành phẩm cuối cùng. Quá trình kiểm tra được thực hiện nghiêm ngặt theo các tiêu chuẩn quốc tế như JIS, GB, DIN để loại trừ tối đa các sản phẩm lỗi, đảm bảo độ chính xác của từng chiếc bulong.
Điều này giúp đảm bảo khách hàng luôn nhận được sản phẩm có chất lượng cao, độ mạ chống ăn mòn tốt, khả năng chịu lực vượt trội trong mọi điều kiện môi trường. Chính sách quản lý chất lượng chặt chẽ của chúng tôi cũng chính là yếu tố giúp duy trì uy tín, thương hiệu lâu dài trên thị trường.
Dịch vụ khách hàng chuyên nghiệp, hỗ trợ 24/7
Chúng tôi luôn sẵn sàng lắng nghe và hỗ trợ khách hàng mọi lúc, mọi nơi. Đội ngũ hỗ trợ kỹ thuật của Tín Quang luôn sẵn sàng tư vấn miễn phí, giúp khách hàng lựa chọn loại bulong phù hợp, xác định thông số kỹ thuật chính xác, và cung cấp các giải pháp tối ưu về mặt kỹ thuật lẫn giá thành.
Ngoài ra, với chính sách giao hàng nhanh chóng, dịch vụ hậu mãi chu đáo, khách hàng tại TPHCM và toàn quốc đều có thể nhận hàng đúng tiến độ, đảm bảo mọi dự án được triển khai trôi chảy, không gián đoạn. Cam kết của chúng tôi chính là mang đến sự hài lòng tuyệt đối cho khách hàng khi lựa chọn sản phẩm của Tín Quang.
Chính sách ưu đãi và giao hàng nhanh chóng trong khu vực TPHCM và toàn quốc
Chúng tôi thường xuyên có các chương trình khuyến mãi, chiết khấu giá cả hấp dẫn dành riêng cho đối tác lâu dài, các khách hàng xây dựng lớn. Hơn nữa, hệ thống vận chuyển phát nhanh, dịch vụ hỗ trợ kỹ thuật tại chỗ giúp giảm thiểu thời gian chờ đợi, tối ưu tiến độ thi công.
Khách hàng hoàn toàn yên tâm về khả năng cung cấp số lượng lớn, đủ tiêu chuẩn kỹ thuật trong thời gian ngắn nhất. Tín Quang cam kết luôn sẵn sàng đồng hành, mang đến các giải pháp tốt nhất, giúp mọi dự án của bạn tiến hành đúng tiến độ, đạt hiệu quả cao nhất.
Liên hệ ngay qua Hotline 1800 9257 hoặc địa chỉ liên hệ của công ty
Để đặt hàng hoặc tìm hiểu chi tiết về các loại bulong neo Tín Quang, khách hàng vui lòng liên hệ ngay với chúng tôi qua Hotline: 1800 9257 hoặc truy cập website chính thức của công ty để được tư vấn miễn phí, nhận báo giá cạnh tranh và hỗ trợ vận chuyển nhanh chóng. Đội ngũ nhân viên chuyên nghiệp, nhiệt tình luôn sẵn sàng phục vụ mọi yêu cầu của khách hàng.
English
